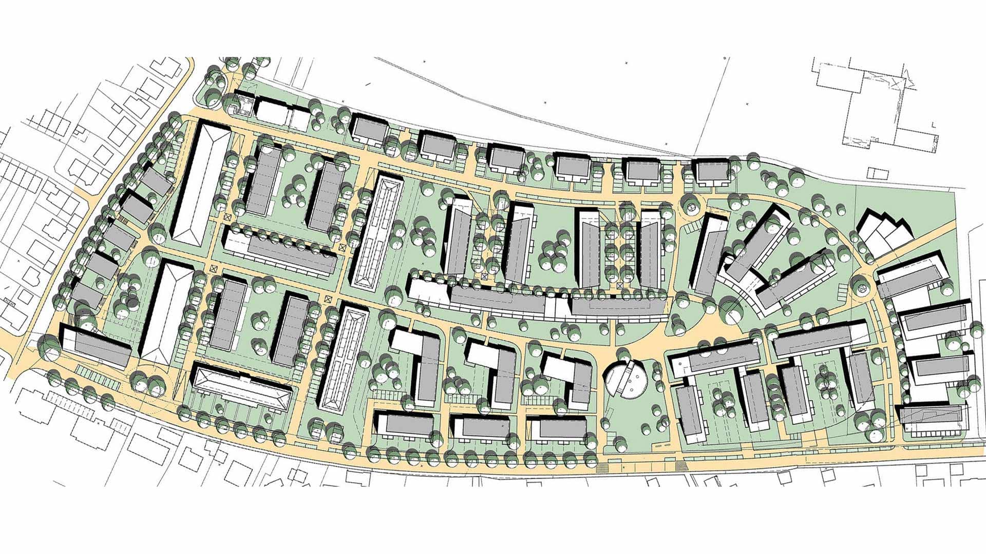
Bebauung der ehemaligenFunkerkaserne EsslingenStädtebaulicher Entwurf, Gestaltrahmenplan
Bauherren: Baugenossenschaft ESSiedlungswerk StuttgartEsslinger WohnungsbauLEG Stuttgart
552 WE in Neubauten263 WE in Altbauten800 Tiefgaragenstellplätze